Trong thời gian gần đây, việc thiết kế nội thất cho nhà phố và nhà lô phố đã trở thành một xu hướng phổ biến, nhằm nâng cao giá trị không gian sống và đáp ứng đầy đủ nhu cầu sử dụng cho các gia đình hiện đại. Tuy nhiên, do mỗi căn nhà phố có diện tích và hiện trạng khác nhau, việc hoàn thiện không gian sống theo sở thích riêng của gia chủ có thể đối mặt với nhiều khó khăn.
Bản vẽ mặt bằng nhà phố sẽ giúp bạn dễ dàng hình dung vị trí sắp xếp nội thất hợp lí, thuận tiện cho sinh hoạt
Trong quá trình thiết kế nội thất cho nhà phố, việc có một bản vẽ mặt bằng chi tiết là rất quan trọng để bạn có thể thấy rõ cấu trúc và kích thước của không gian. Bản vẽ mặt bằng sẽ giúp bạn tạo ra những phương án bố trí nội thất tối ưu, phù hợp với những nhu cầu và mong muốn của gia đình.
Những lưu ý khi thiết kế bản vẽ mặt bằng nhà phố
Dù có sự khác biệt trong cách bố trí bản vẽ mặt bằng nhà phố, nhưng vẫn tồn tại một số lưu ý chung để thiết kế nội thất ngôi nhà trở nên tiện nghi mà không vi phạm phong thủy.
Với diện tích nhà ở phổ biến hiện nay, thường có chiều ngang từ 3 đến 8 mét và chiều sâu từ 10 đến 20 mét. Tùy vào số lượng thành viên và nhu cầu sử dụng, có thể thiết kế nhà phố từ 2 đến 4 tầng. Tuy nhiên, không chỉ nên tập trung vào số tầng mà còn cần tạo không gian sống hợp lý và thoáng đãng.

Sắp xếp vị trí các không gian phòng hợp lí cho mặt bằng nhà phố 4 tầng
Trong quy trình sắp xếp vị trí các phòng chức năng trong ngôi nhà, cần lưu ý thuận tiện cho thói quen sinh hoạt cũng như yếu tố phong thủy. Điều quan trọng đầu tiên là phòng khách, được xem như nơi đón tài lộc, nên được đặt ở mặt tiền nhà phố. Phòng khách nằm ở vị trí này sẽ tạo cảm giác mở rộng, chào đón sự may mắn và thu hút năng lượng tích cực vào ngôi nhà.
Tiếp theo, để đảm bảo tính riêng tư trong sinh hoạt, các phòng ngủ nên được bố trí phía trên lầu. Việc đặt chúng ở vị trí cao sẽ tạo cảm giác yên tĩnh, tránh tiếng ồn và tạo không gian riêng biệt cho từng thành viên trong gia đình.
Nhà bếp nên được nối liền với không gian phía sau ngôi nhà và sân sau nên được thiết kế để làm sân nước. Sân nước có thể được sử dụng để giặt, phơi quần áo và sơ chế thực phẩm, cung cấp không gian rộng rãi và thoáng đãng cho các hoạt động hàng ngày.
Ngoài ra, việc thiết kế cửa phụ là rất quan trọng. Cửa phụ không chỉ là lối thoát hiểm mà còn tạo điều kiện cho luồng khí lưu thông xuyên suốt trong không gian. Điều này sẽ mang lại sự thịnh vượng và sức khỏe tốt cho các thành viên trong gia đình. Cửa phụ cũng có thể là một cửa sổ hoặc một cánh cửa lớn, tùy thuộc vào thiết kế và không gian của ngôi nhà.

Bố trí bản vẽ mặt bằng nhà lô phố có cửa phụ
Trong trường hợp bạn sở hữu một ngôi nhà ống hoặc muốn thiết kế phòng khách và nhà bếp liền nhau, điều cần quan tâm là không để cửa chính hướng thẳng vào nhà bếp. Điều này làm gia đình mất đi sự hòa khí và có thể gây ra xung đột và rối loạn trong gia đình.
Tổng hợp những mẫu mặt bằng nhà phố đẹp nhất
Bản vẽ mặt bằng nhà phố 2 tầng

Bố trí mặt bằng tầng trệt nhà phố với không gian phòng khách và nhà bếp

Thiết kế nhà phố với cách bố trí 3 phòng ngủ ở lầu 2
Thiết kế mặt bằng nhà phố 5×20 có tầng lửng

Bố trí mặt bằng nhà ống có phòng khách liền bếp tại tầng trệt

Sử dụng tầng lửng làm phòng khách nhỏ riêng tư, ấm cúng

Bố trí phòng ngủ tầng 2 với 2 phòng ngủ diện tích rộng rãi

Mặt bằng nhà phố tầng 3 hiện đại và tiện nghi

Phòng thờ được bố trí ở tầng cao nhất để thể hiện sự tôn kính
Bố trí mặt bằng nội thất nhà lô phố 5m

Mặt bằng nội thất nhà ống có sân sau thoáng đãng

Bản vẽ mặt bằng tầng 1 nhà phố hiện đại

Mặt bằng nội thất lầu 2 nhà phố đẹp
Bản vẽ bố trí mặt bằng nhà phố 3 tầng 5 x 15m

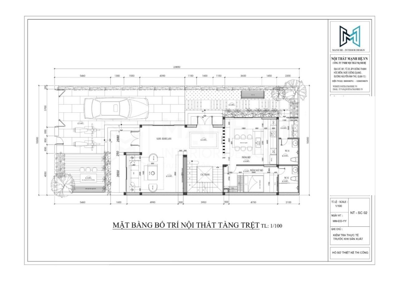
Bản vẽ mặt bằng bố trí nội thất tầng trệt nhà lô phố

Toàn bộ không gian phòng thờ và phòng ngủ được bố trí tại tầng 1 nhà phố 5 x 15m

Phòng ngủ bé được bố trí ở tầng cao nhất để hưởng trọn không khí thoáng đãng ngoài sân thượng
Đơn vị chuyên thiết kế thi công nội thất nhà phố đẹp, chuẩn phong thủy
Với hơn 20 năm kinh nghiệm trong lĩnh vực thiết kế nội thất và hoàn thiện hàng trăm dự án mỗi năm, Nội Thất Mạnh Hệ tự hào là một đơn vị uy tín trong việc tạo ra không gian sống hoàn hảo theo sở thích riêng của khách hàng. Chúng tôi đã thành công trong việc thiết kế và thi công nội thất cho các loại hình nhà ở như nhà phố, chung cư và biệt thự.

Thực tế thi công nội thất phòng khách nhà phố hiện đại

Thi công nội thất phòng bếp nhà phố hiện đại
Mạnh Hệ không chỉ là một đơn vị thiết kế và thi công nội thất uy tín mà còn sở hữu xưởng sản xuất nội thất trực tiếp. Điều này đảm bảo rằng mọi món đồ nội thất được sản xuất và hoàn thiện với sự chính xác và kiểm tra chi tiết. Từ quá trình lựa chọn ván gỗ chất lượng cho đến quy trình thi công lắp đặt, chúng tôi đảm bảo rằng mỗi sản phẩm đều đạt được tiêu chuẩn cao nhất.
Việc sở hữu xưởng sản xuất riêng cũng mang lại lợi ích về chi phí cho khách hàng. Mạnh Hệ không phải thông qua trung gian thứ ba, giúp tiết kiệm đến 30% chi phí. Chúng tôi tự mình quản lý quy trình sản xuất và điều khiển chất lượng, từ đó giảm bớt các chi phí phát sinh từ việc trung gian và đảm bảo giá trị tốt nhất cho khách hàng.

Xướng sản xuất nội thất trực tiếp tại Mạnh Hệ
Mạnh Hệ không chỉ mang đến cho bạn các dịch vụ thiết kế và sản xuất nội thất chất lượng cao, mà còn cam kết cung cấp một trải nghiệm chuyên nghiệp và tư vấn tốt nhất. Với đội ngũ chuyên gia thiết kế giàu kinh nghiệm, chúng tôi luôn nắm bắt và cập nhật những xu hướng nội thất hàng đầu hiện nay.

Hãy đến với Mạnh Hệ để trải nghiệm quy trình nội thất chuyên nghiệp và tận tâm
Liên hệ ngay với chúng tôi qua HOTLINE: 028.777.888.39 hoặc Tel: 0869.048.791 để được tư vấn và nhận ngay bản vẽ thiết kế MIỄN PHÍ khi thi công nội thất.
Xem thêm: |










