The Golden Star – 69m2 – 2PN
- Địa chỉ: Quận 7
- Diện tích: 69m2
- Phong cách: Hiện đại
- Phòng ngủ: 2 phòng ngủ
- Khách hàng: Chị T
Khuyến mãi đặc biệt giảm 100% phí thiết kế - khi thi công nội thất
Với tình yêu dành cho những buổi sum họp gia đình, chị T mong muốn căn hộ của mình luôn là nơi ấm cúng và tiện nghi để cả nhà quây quần bên nhau. Từ mong ước ấy, đội ngũ Mạnh Hệ đã thiết kế dự án The Golden Star – 69m2 – 2 phòng ngủ với phong cách hiện đại, nơi công năng nội thất được tận dụng tối đa, hài hòa cùng ánh sáng và màu sắc. Không gian vì thế mà trở thành một tổ ấm trọn vẹn cả sự thư giãn lẫn sự tiện lợi trong sinh hoạt hằng ngày. Cùng Mạnh Hệ khám phá không gian sống, nơi từng khoảng trống được khai thác tinh tế để trở thành giá trị cho tổ ấm của bạn!

Thiết kế nội thất phòng khách liền bếp hiện đại, tinh tế
Đội ngũ đã lựa chọn thiết kế mở cho không gian phòng khách liền bếp để tạo sự kết nối liền mạch, quây quần giữa khu vực tiếp khách – bếp và bàn ăn, đúng như mong muốn của gia chủ. Để bầu không khí thêm ấm cúng, Mạnh Hệ đã sử dụng tông màu trung tính chủ đạo như kem, be, xám mang đến cảm giác nhẹ nhàng, làm nổi bật nội thất.

>>> Xem thêm: 35+ Ý tưởng thiết kế nội thất phòng khách cho căn chung cư đẹp mê ly
Nhờ thiết kế bố cục khéo léo, từng góc nhỏ trong căn hộ đều được tận dụng hợp lý: phòng khách thoáng sáng nhờ cửa kính lớn, bàn ăn gọn gàng đặt cạnh các mảng tường tạo điểm nhấn. Bên cạnh đó, còn có sự kết hợp giữa ánh sáng tự nhiên, hệ đèn âm trần và ánh sáng tự nhiên đã làm nổi bật nét tinh tế, tạo không khí ấm cúng và không thiếu sự hiện đại cho gia đình.


Đội ngũ đã bố trí phòng bếp liền mạch hơn giúp sinh hoạt hằng ngày của gia đình chị T trở nên thuận tiện hơn. Hệ tủ bếp chữ L cao kịch trần kết hợp thiết bị âm tủ hiện đại để tối ưu diện tích và thao tác nấu nướng, giúp căn bếp trở nên gọn gàng. Ngoài ra, sự phối hợp giữa gam màu be sáng và ánh sáng từ đèn led hắt tủ mang đến cảm giác rộng thoáng và hiện đại.


Chị T mong muốn có một bàn ăn ấm cúng để cả gia đình hoặc khách đến sum họp, do đó Mạnh Hệ đã đáp ứng bằng bộ bàn 6 ghế phù hợp với diện tích, đồng bộ màu sắc với không gian. Khi kết hợp cùng đèn thả bàn ăn tinh tế và mảng tường trang trí, nơi đây trở thành góc quây quần trọn vẹn, lưu giữ những bữa cơm đầy cảm xúc.

>>> Xem thêm: 25+ mẫu thiết kế bếp chung cư tiện nghi, hiện đại thịnh hành nhất
Nội thất phòng ngủ chung cư ấm cúng, bắt mắt
Không gian nghỉ ngơi luôn được chị T ưu tiên sự ấm cúng và thoải mái, để mỗi thành viên trong gia đình có những giây phút thư giãn trọn vẹn. Đội ngũ Mạnh Hệ đã mang đến hai thiết kế phòng ngủ với phong cách hiện đại, tinh tế tạo điểm nhấn riêng cho từng cá tính.
Phòng ngủ master
Mạnh Hệ đã thiết kế phòng ngủ master với tinh thần hiện đại mang gam màu trắng – be ấm cúng, giúp chị T có một không gian riêng tư thoải mái để nghỉ ngơi. Ngoài ra, để tối ưu diện tích không gian, hệ tủ quần áo kịch trần được thiết kế âm tường và kết hợp với bàn làm việc treo tường ngay cửa sổ dễ tập trung làm việc. Điểm nhấn tinh xảo nằm ở bức tường đầu giường, được lựa chọn sơn hiệu ứng cùng tranh treo trang trí tinh tế.



>>> Xem thêm: 50+ mẫu thiết kế nội thất phòng ngủ đẹp, tiện nghi
Đặc biệt, phòng ngủ master còn được tích hợp nhà vệ sinh riêng, sử dụng đá ốp vân mây sang trọng và nội thất tối giản. Nhờ vậy, không gian nghỉ ngơi của gia chủ trở thành một “góc thư giãn” hoàn hảo, trọn vẹn cả sự tiện nghi lẫn cảm xúc.

Phòng ngủ 02
Đối với phòng ngủ 02 sẽ được đội ngũ thiết kế nội thất tinh gọn hơn, tập trung chủ yếu vào công năng để đáp ứng nhu cầu sinh hoạt của gia chủ. Giường ngủ được đặt gọn gàng sát tường đồng thời tạo bố cục khoa học cho không gian nghỉ ngơi. Thiết kế hệ tủ quần áo kịch trần gam màu trắng tinh khiết vừa giúp gia tăng diện tích lưu trữ vừa giúp phòng ngủ thêm thoáng đãng.



>>> Xem thêm: 49+ Mẫu thiết kế nội thất phòng ngủ cho căn hộ đẹp theo xu hướng mới

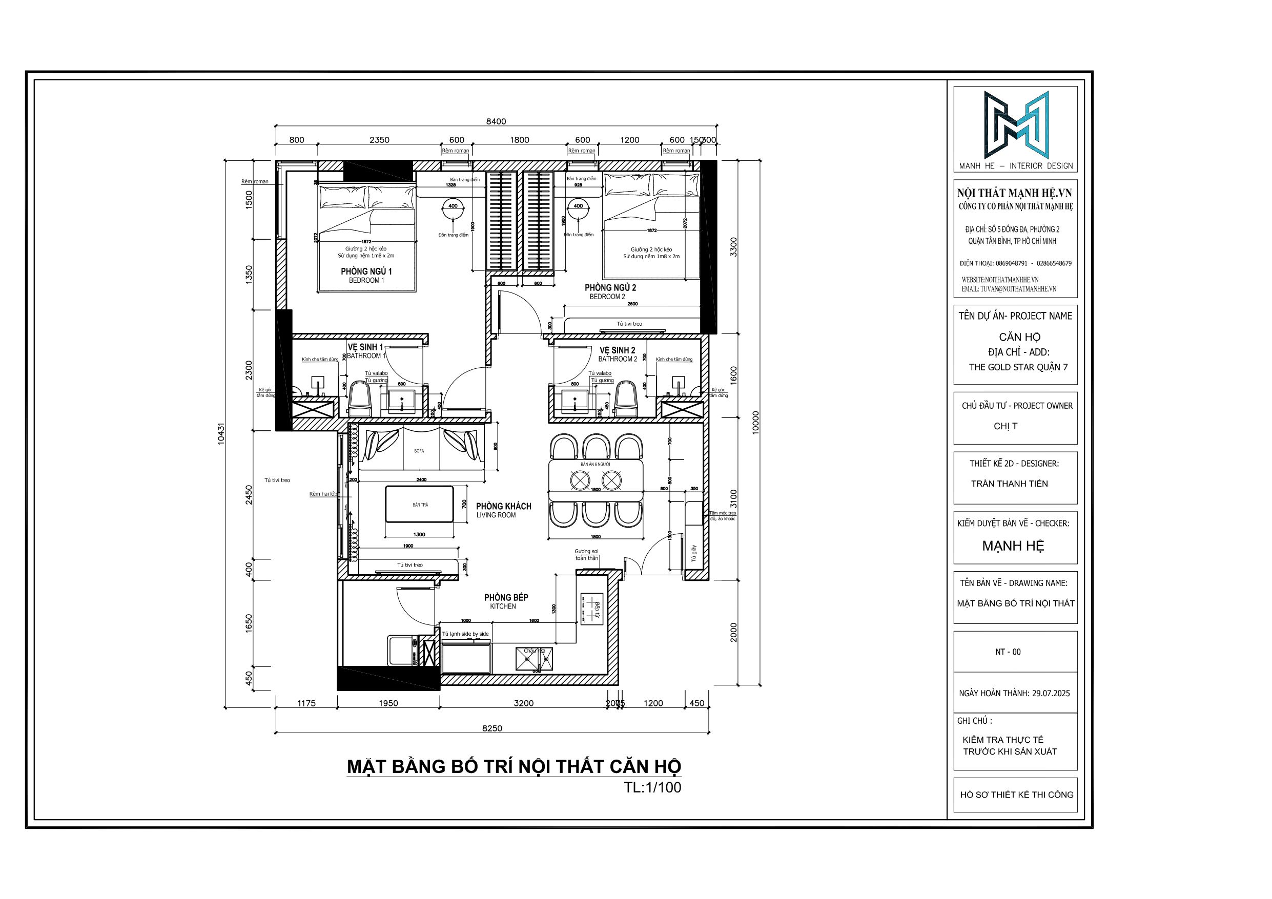
Mặt bằng bố trí nội thất căn hộ The Golden Star tiện nghi
Dựa trên nhu cầu sống tiện nghi và ấm cúng của chị T, đội ngũ Mạnh Hệ đã lên phương án mặt bằng khoa học cho căn hộ The Golden Star. Phòng khách được đặt ở trung tâm, liên thông với bếp và bàn ăn để tạo sự liền mạch trong sinh hoạt gia đình. Hai phòng ngủ được bố trí đối xứng hai bên, vừa đảm bảo sự riêng tư, vừa tận dụng tối đa ánh sáng tự nhiên từ cửa sổ lớn. Ngoài ra, căn hộ còn có hai nhà vệ sinh tách biệt, giúp gia đình thuận tiện hơn trong sử dụng. Bản vẽ mặt bằng không chỉ thể hiện sự cân đối trong bố cục, mà còn là nền tảng quan trọng để triển khai thiết kế nội thất hiện đại, tinh tế, đáp ứng trọn vẹn mong muốn của gia chủ.

Dự án The Golden Star 69m2 – 2PN của chị T là sự hòa quyện giữa nội thất hiện đại tinh tế và không gian sống ấm cúng, nơi lưu giữ sự gắn kết và yêu thương của gia đình. Từng chi tiết đều được đội ngũ Mạnh Hệ chăm chút để mang lại sự thoải mái, tiện nghi và đúng với mong muốn của gia chủ. Đây cũng chính là minh chứng cho hành trình đội ngũ đồng hành cùng khách hàng, biến những ý tưởng ban đầu thành tổ ấm đầy cảm xúc. Hãy để Mạnh Hệ – đơn vị thiết kế, thi công nội thất trọn gói, uy tín, đồng hành cùng bạn tạo không gian sống hiện đại và trọn vẹn yêu thương cho gia đình!
>>> Xem thêm:







