
Đăng ký NGAY!
Khuyến mãi đặc biệt giảm 100% phí thiết kế - khi thi công nội thất
Giữa nhịp sống hiện đại của Nhà Bè, dự án nội thất nhà phố của chị V với diện tích 2 tầng trở nên khác biệt nhờ sự kết hợp tinh tế giữa phong cách Japandi thanh thoát – ấm cúng và hơi thở Bắc Bộ mộc mạc. Từng đường nét, chất liệu và gam màu được chọn lựa kỹ lưỡng, mang lại không gian vừa tiện nghi, vừa chan hòa cảm xúc. Trở thành chốn về bình yên, nơi mỗi thành viên tìm thấy sự thư thái và gắn kết sau những bộn bề thường nhật. Hãy cùng chiêm ngưỡng từng không gian đã được đội ngũ Mạnh Hệ tô đậm từng chi tiết một và thực hiện hóa mong muốn của gia chủ.

Phòng khách được thiết kế liền kề bếp – bàn ăn, tạo nên một không gian mở giúp gia đình dễ dàng sinh hoạt và gắn kết. Nét Bắc Bộ xưa được gợi nhớ bởi sàn gạch giả đất nung gam màu đỏ nâu kết hợp cùng nội thất gỗ tạo cảm giác ấm áp, thân thuộc. Bộ sofa gỗ sáng màu kết hợp nệm màu be nhã nhặn cùng bàn trà gỗ dáng thấp và thảm cói thủ công mang lại tinh thần Japandi tối giản mà vẫn gần gũi. Kệ tivi treo tường gọn gàng kết hợp vách ốp phẳng tone be sáng, được chia ô cân đối, tạo điểm nhấn nhã nhặn đồng thời liên kết hài hòa với cầu thang tay vịn gỗ – lan can sắt uốn cong mềm mại, tinh tế.



>>> Xem thêm: Mê ly với 35+ mẫu phòng khách nhà phố đẹp, tiện nghi
Bên cạnh đó, phòng bếp trở nên hài hòa ấm cúng nhờ vào sự kết hợp màu sắc giữa gam màu gỗ ấm cúng và màu trắng tinh tế. Hệ tủ bếp chữ L được thiết kế kịch trần để đảm bảo công năng cũng như phù hợp với bố cục của không gian. Tủ bếp vân gỗ sồi kết hợp với ốp đá vân mây cho mặt bếp và tường bếp giúp nâng tầm thẩm mỹ không gian cũng như dễ dàng vệ sinh và bảo trì.




>>> Xem thêm: Khám phá 30+ mẫu thiết kế phòng bếp nhà phố đẹp tiện nghi, ấm cúng
Chị V mong muốn mỗi thành viên đều có một không gian nghỉ ngơi thoải mái, đúng với sở thích và nhu cầu sử dụng. Do đó, phòng ngủ được thiết kế từ màu sắc, chất liệu đến cách bố trí, mọi chi tiết đều hướng đến sự thư giãn đồng thời vẫn giữ được sự đồng bộ phong cách Japandi pha nét Bắc Bộ.
Theo mong muốn của chị V, phòng ngủ master phải là nơi thật thư giãn và gọn gàng, vừa có đủ công năng, vừa giữ được sự tinh tế. Điểm nhấn nổi bật là vách đầu giường bọc nệm vải phối mây đan, tạo cảm giác êm ấm, ấm cúng và làm tăng sự thoải mái khi tựa lưng. Chiếc giường gỗ với dáng thấp tối giản được đặt hài hòa cùng tab đầu giường mây đan, thêm chi tiết trang trí với thảm dệt sợi đay và phía trên là bức tranh nghệ thuật dân gian, tất cả hòa quyện để mang đến một không gian vừa thanh lịch vừa gần gũi.


Vách tivi trong phòng ngủ được thiết kế liền khối với hệ tủ lưu trữ và bàn trang điểm tạo không gian đồng bộ. Phần giữa vách được tận dụng làm bàn trang điểm được ốp gỗ vân gỗ sồi tự nhiên bo cong mềm mại ở viền trên để giảm cảm giác khô cứng, đồng thời tạo chiều sâu thị giác. Hai bên vách là tủ cánh mây cao kịch trần lưu trữ phụ kiện, đồ cá nhân.

>>> Xem thêm: 60+ mẫu thiết kế nội thất nhà phố đẹp hiện đại được ưa chuộng nhất năm 2026
Phòng ngủ 01 được thiết kế với diện tích thoáng rộng, bố trí hai giường đôi đáp ứng nhu cầu nghỉ ngơi cho nhiều thành viên hoặc khi có khách lưu trú. Sử dụng gam màu be kết hợp với nội thất gỗ sồi tự nhiên tạo cân bằng giữa sự ấm áp, gần gũi và sang trọng. Đội ngũ đã thiết kế hệ tủ quần áo kịch trần với cánh mây nan bo cong tạo sự mềm mại mang hơi hướng Bắc Bộ. Sử dụng trần thạch cao thiết kế gợn theo dạng sóng kết hợp đèn thả trần tạo điểm nhấn độc đáo mang đậm phong cách Japandi.



>>> Xem thêm: 35+ Mẫu Nội Thất Phòng Ngủ Nhà Phố Đẹp Bất Chấp Diện Tích
Phòng ngủ 02 được bố trí 2 giường ngăn cách bởi tab đầu giường tinh tế. Trong đó, nổi bật với thiết kế vách đầu giường bọc nệm liền mạch với tủ quần áo kịch trần, mang lại cảm giác ấm áp và gần gũi. Phía trên được bố trí 2 bức tranh nghệ thuật tạo điểm nhấn đậm nét Bắc Bộ. Tủ tivi được nhấn nhá với mặt bàn ốp đá kết hợp cùng hệ ngăn kéo gỗ và tủ kệ lưu trữ kịch trần tạo thêm công năng cho phòng ngủ.



Sảnh và hành lang được thiết kế như một khoảng đệm nhẹ nhàng, kết nối các không gian trong nhà một cách liền mạch. Nổi bật với điểm nhấn sàn gạch bông họa tiết hoa văn cổ điển phối màu trắng – đỏ, khu vực này gợi nét hoài niệm mang truyền thống Việt Nam. Kết hợp khung cửa gỗ lớn ghi đậm tinh thần Japandi và cây xanh được bố trí khéo léo tạo cảm giác thư thái, mang hơi thở thiên nhiên vào từng bước di chuyển.


Không gian nhà vệ sinh được kết hợp giữa gạch ốp hai tông màu – đỏ gạch ấm áp và xanh olive tươi mát – tạo hiệu ứng thị giác nổi bật, đồng thời phân tách rõ khu vực khô và ướt. Điểm nhấn nằm ở bồn rửa đặt trên tủ gỗ kết hợp cánh mây đan, vừa tạo sự thông thoáng vừa giữ phong cách Japandi – Bắc Bộ xuyên suốt. Gương treo tường uốn lượn mềm mại cùng đèn ánh vàng ấm góp phần tăng thêm cảm giác thư thái, biến nơi này không chỉ để sử dụng hàng ngày mà còn là “góc nghỉ” nhỏ để tái tạo năng lượng.




>>> Xem thêm: [39+Mẫu] nhà vệ sinh đẹp được ưa chuộng nhất 2026
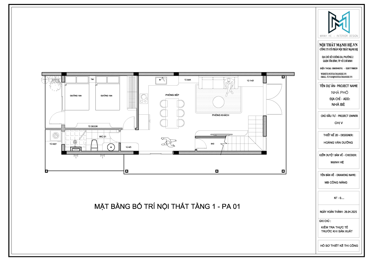
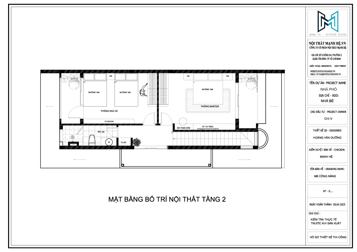
Với diện tích được tận dụng tối đa, mặt bằng bố trí của nhà phố tại Nhà Bè thể hiện sự khoa học trong sắp xếp không gian. Tầng 1 ưu tiên không gian sinh hoạt chung với phòng khách rộng rãi, bếp – bàn ăn liên thông giúp kết nối các thành viên, kèm phòng ngủ 01 và WC tiện lợi. Tầng 2 dành cho khu nghỉ ngơi với phòng master và phòng ngủ 02, đảm bảo sự riêng tư nhưng vẫn gần gũi. Cách bố trí này không chỉ tối ưu công năng mà còn tạo cảm giác thoáng đãng, thuận tiện cho sinh hoạt hàng ngày.

>>> Xem thêm: Tổng hợp mẫu bản vẽ mặt bằng nhà phố đẹp, chuẩn phong thủy

Dự án thiết kế nội thất nhà phố Nhà Bè của chị V là sự giao thoa hài hòa giữa phong cách Japandi tối giản và hơi thở Bắc Bộ mộc mạc. Bức tranh tổ ấm của gia đình chị như dần được hoàn thiện với chất liệu gỗ ấm áp, mây đan thủ công, kết hợp cùng gam màu nhẹ nhàng tạo nên tổng thể thống nhất, gần gũi và giàu cảm xúc. Chúng tôi tự hào đồng hành cùng chị V trong hành trình biến ngôi nhà thành tổ ấm mơ ước. Nếu bạn cũng mong muốn sở hữu một không gian sống theo phong cách và sở thích của mình hãy liên hệ ngay với Mạnh Hệ – chuyên thiết kế và thi công nội thất nhà phố để được tư vấn chi tiết.
>>> Xem thêm: