Nội thất nhà phố Quận 12 – anh D – 2 tầng
- Địa chỉ: Quận 12
- Diện tích: 2 tầng
- Phong cách: Hiện đại
- Phòng ngủ: 1 phòng ngủ
- Khách hàng: Anh D
Khuyến mãi đặc biệt giảm 100% phí thiết kế - khi thi công nội thất
Khi đến với Mạnh Hệ, anh D hào hứng chia sẻ, do không còn phù hợp với thiết kế cũ, anh muốn tân trang cho phòng khách – bếp và phòng ngủ nhỏ theo xu hướng hiện đại và mang đậm màu sắc cá nhân của gia chủ. Dựa vào những tiêu chí trên, Mạnh Hệ đã dùng toàn bộ tâm huyết để cho ra đời không gian sống lý tưởng cho gia đình. Hãy cùng chúng tôi khám phá từng chi tiết trong tổ ấm tại quận 12 của khách hàng thân thiết này.

>>>Tham khảo: [100+ Mẫu] Thiết kế nội thất phòng khách liền bếp đẹp nhất
Thiết kế phòng khách – bếp nhà phố hiện đại, tươi sáng
Với niềm đam mê nghệ thuật, anh D yêu cầu không gian phòng khách phải khẳng định cá tính và đậm chất sáng tạo. Chính vì vậy, Mạnh Hệ đã cùng anh thiết kế vách trang trí trên tivi hình mái vòm kết hợp tranh nghệ thuật với đa dạng sắc màu.

Hơn nữa, để thuận tiện cho việc sử dụng hằng ngày, chúng tôi đã thiết kế phòng khách theo phong cách hiện đại với bộ ghế sofa chữ L cùng bàn trà hình chữ nhật mặt đá nhân tạo vân mây thanh lịch.

>>>Xem ngay:
- Mê ly với 35+ mẫu phòng khách nhà phố đẹp, tiện nghi và đầy ấm cúng
- 99+ Mẫu thiết kế nội thất phòng khách đẹp, đa dạng phong cách, thịnh hành nhất
Để tạo sự liền mạch cho không gian, giếng trời được bố trí hợp lý để tạo thành khu vực ngăn cách giữa phòng khách và bếp. Cùng với đó, hệ tủ bếp chữ L kịch trần phủ acrylic bóng loáng giúp tăng thẩm mỹ cho khu vực nấu ăn. Ngoài ra, tủ bếp còn được tích hợp khu vực chứa tủ lạnh, máy hút mùi và lò vi sóng giúp gia chủ thuận tiện khi nấu ăn.


>>>Đừng bỏ lỡ:
- Trang trí bếp với [30+ Mẫu] đẹp – ấn tượng, xu hướng nhất
- 101+ Mẫu thiết kế nội thất phòng bếp đẹp hiện đại, tiện nghi được ưa chuộng nhất
Nội thất phòng ngủ tinh gọn
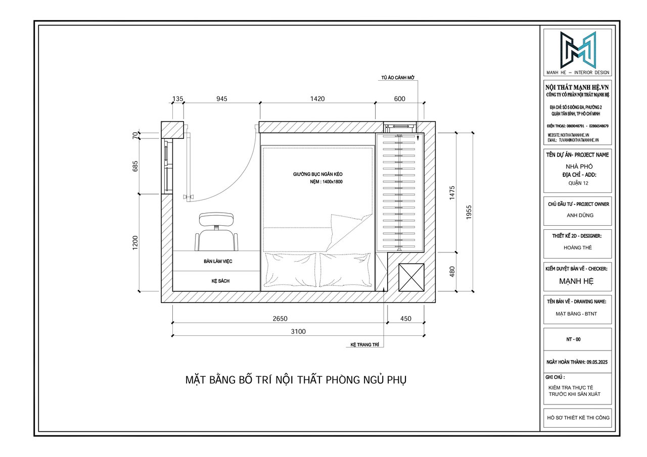
Ngoài không gian phòng khách liền bếp, anh D yêu cầu thiết kế phòng ngủ nhỏ với diện tích khiêm tốn nhưng đảm bảo đầy đủ công năng. Nắm bắt yêu cầu của anh, đội ngũ KTS đã bố trí hệ tủ quần áo kịch trần kết hợp kệ trang trí giúp tối ưu diện tích. Thêm nữa, giường ngủ dạng bục được thiết kế kết hợp ngăn kéo cùng bàn làm việc treo tường nhỏ gọn giúp phòng ngủ nhà phố đầy đủ công năng.


>>>Xem ngay:
- 35+ Mẫu nội thất phòng ngủ nhà phố đẹp bất chấp diện tích
- Báo giá thi công nội thất phòng ngủ và 55+ Mẫu phòng ngủ đẹp hiện đại cho người lớn và trẻ em
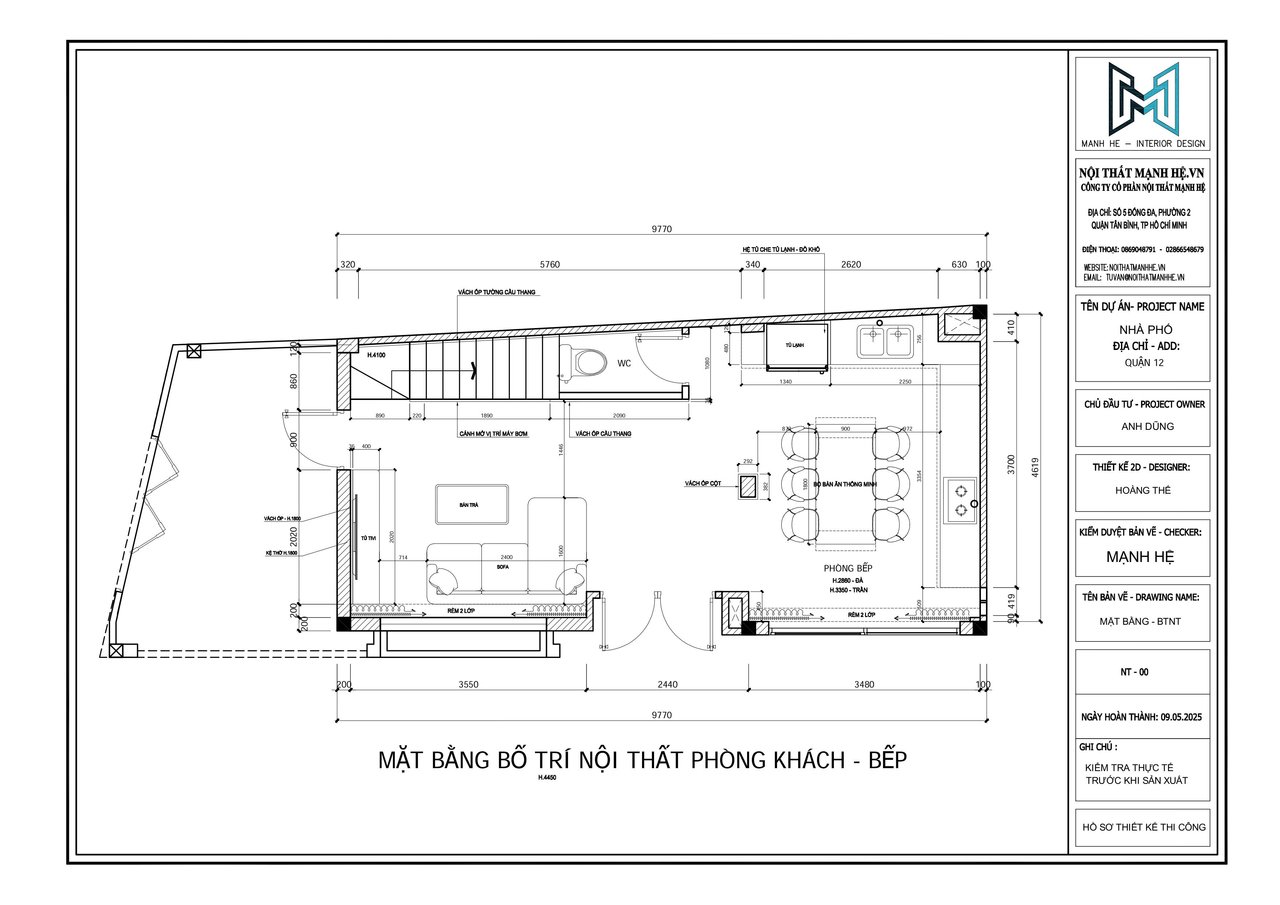
Bản vẽ mặt bằng nhà phố tại quận 12
Mời bạn xem ngay bản vẽ chi tiết mặt bằng nhà phố Quận 12 của anh D với sự chỉn chu trong từng cách bố trí. Thiết kế tầng trệt gồm phòng khách liền bếp và cầu thang, giúp đảm bảo công năng cho nhà phố. Ngoài ra, phòng ngủ nhỏ được bố trí với những món nội thất vô cùng tinh gọn nhằm tiết kiệm diện tích.


Bạn đã cùng Mạnh Hệ điểm qua từng không gian trong nhà phố tại quận 12 của anh D với không gian hiện đại, thông thoáng cùng vách trang trí nghệ thuật tạo điểm nhấn thú vị. Gia đình anh D hoàn toàn hài lòng với những gì mà chúng tôi mang lại. Chính vì vậy hãy lựa chọn chúng tôi khi bạn có nhu cầu thiết kế nội thất nhà phố và thi công nội thất nhà phố, đảm bảo bạn sẽ không thất vọng.
>>>Xem thêm:







