Nhà cấp 4 mái thái 3 phòng ngủ được rất nhiều gia chủ lựa chọn bởi thiết kế đẹp mắt và đảm bảo không gian sinh hoạt cho các thành viên trong gia đình. Cùng tìm hiểu vì sao các mẫu nhà cấp 4 mái thái 3 phòng ngủ lại được ưa chuộng đến như vậy.
Cũng như điểm qua mẫu nhà cấp 4 mái thái 3 phòng ngủ ấn tượng cho gia chủ tham khảo!
Bản vẽ thiết kế nhà cấp 4 mái thái 3 phòng ngủ hiện đại
Nhà mái Thái đã trở thành nguồn cảm hứng cho nhiều nhà thiết kế trong những năm qua. Bản vẽ thiết kế nhà cấp 4 mái thái 3 phòng ngủ cải tiến tập trung vào từng chi tiết để tạo ra không gian sống hiện đại và sáng tạo.

Nhà mái Thái tập trung vào từng chi tiết để tạo ra không gian sống hiện đại
Thiết kế phòng ngủ hiện đại trong ngôi nhà này không chỉ mang lại sự sang trọng mà còn đảm bảo tính tiện nghi. Nội ngoại thất được lựa chọn trang trí theo phong cách hiện đại, mang đến sự trẻ trung và tinh tế. Thiết kế nhà sử dụng vật liệu mới với màu sắc độc đáo tạo điểm nhấn cho ngôi nhà.

Bản vẽ thiết kế nhà cấp 4 mái thái 3 phòng ngủ đẳng cấp có sân vườn
Cửa chính thiết kế thay đổi bằng việc sử dụng cửa nhôm kính giả gỗ hoặc cửa gỗ pano kết hợp với kính. Gia chủ thay vì sử dụng cửa gỗ pano đặc kính thì việc thay đổi giúp thiết kế trở nên linh hoạt hơn. Thiết kế cửa phong thủy tạo sự thông thoáng và hút tài lộc cho ngôi nhà.

Mẫu thiết kế nhà cấp 4 mái thái có sân nhà lớn
Thiết kế nhà cấp 4 mái thái 3 phòng ngủ tạo ra không gian sân vườn nhỏ xanh mát mang đến cảm giác gần gũi với thiên nhiên. Ngôi nhà không bị cảm giác bí bách và thiếu năng lượng mà luôn tràn đầy nhựa sống. Gia chủ tận dụng diện tích để trang trí sân vườn trồng cây giúp không gian trở nên hài hòa và sinh động hơn.

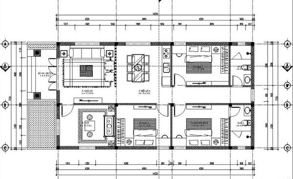
Bản vẽ bố trí mặt bằng nhà cấp 4 mái thái 3 phòng ngủ có sân lớn
Bản thiết kế nhà cấp 4 mái thái có một khoảng sân trước rộng rãi nên sử dụng bậc thang tam cấp lát đá, tạo sự tự nhiên và thông thoáng cho mặt tiền ngôi nhà. Sảnh tiếp đón được thiết kế rộng lớn với vách ngăn phòng bếp, xung quanh là 3 phòng ngủ và hành lang dẫn thẳng tới cửa ra sân sau.
Đặc điểm của kiểu nhà cấp 4 mái Thái
Kiến trúc nhà cấp 4 mái thái đòi hỏi sự chăm chút tỉ mỉ từ khâu lên bản vẽ thiết kế đến quá trình thi công hoàn thiện. Nhà mái thái hiện đại đã được đổi mới và mang đến vẻ đẹp hiện đại, đa dạng hơn về kiến trúc, và các mẫu thiết kế nhà mái thái cũng có khả năng chịu các tác động của môi trường mạnh hơn, mát mẻ vào mùa hè và ấm áp vào mùa đông.

Mẫu nhà cấp 4 mái thái 3 phòng ngủ đẹp
Có nhiều chi tiết nhỏ
Kiến trúc nhà cấp 4 mái Thái yêu cầu sự tinh tế và tỉ mỉ từ giai đoạn thiết kế đến thi công. Nhà mái Thái được cải tiến để mang lại vẻ đẹp hiện đại và tinh tế. Các mẫu thiết kế nhà mái Thái cũng nổi trội với khả năng chịu nhiệt tốt, giữ mát vào mùa hè và ấm áp vào mùa đông.

Kiến trúc nhà yêu cầu sự tinh tế và tỉ mỉ từ giai đoạn thiết kế đến thi công
Độ dốc mái
Thiết kế nhà mái Thái nên sử dụng ngói theo nhiều kiểu dáng khác nhau, tăng cường khả năng thoát nước và chống thấm tốt. Khi thiết kế mái cũng cần lưu ý về độ dốc để phù hợp với phong cách cũng như đáp ứng được những ưu điểm nổi bật thoát nước và chống thấm.

Thiết kế nhà mái Thái nên có độ dốc khi xây dựng
Chi phí xây dựng cao
Nhà mái thái yêu cầu về sự tỉ mỉ và chi tiết rất cao nên đòi hỏi chi phí xây dựng ban đầu khá lớn. Gia chủ cần lưu ý vấn đề này để dự trù kinh phí phù hợp khi xây dựng nhà mái Thái.

Chi phí xây dựng nhà mái thái cấp 4 khá cao
>>>Tham khảo: Những Mẫu Nhà Cấp 4 Mái Nhật Đẹp Thịnh Hành Nhất Năm 2026
Ưu – nhược điểm nhà cấp 4 mái thái 3 phòng ngủ
Nhà cấp 4 mái Thái 3 phòng ngủ được nhiều gia chủ lựa chọn để xây dựng vì sở hữu rất nhiều ưu điểm nổi trội.
Ưu điểm
- Đa dạng mẫu mã thiết kế: Nhà cấp 4 mái Thái đa dạng trong mẫu mã thiết kế cho phép lựa chọn theo sở thích và phong cách của gia chủ.
- Thiết kế đơn giản, tinh tế và hiện đại: Nhà có thiết kế đơn giản nhưng vẫn mang đến sự tinh tế và hiện đại, tạo nên một không gian sống trang nhã và thu hút.
- Thời gian thi công ngắn: So với nhiều thiết kế nhà khác, nhà cấp 4 mái Thái có thời gian thi công xây dựng ngắn hơn đáng kể, giúp tiết kiệm thời gian và tối ưu hóa quy trình xây dựng.
- Thiết kế linh hoạt: Kiểu nhà cấp 4 mái Thái có khả năng thiết kế linh hoạt phù hợp với từng diện tích đất khác nhau. Giá chủ tận dụng tối đa không gian phù hợp với nhu cầu của gia đình.

Một số ưu điểm nổi bật của nhà cấp 4 mái thái 3 phòng ngủ bạn nên biết
- Khả năng thoát nước và chống nước tốt: Thiết kế ngói độc đáo tăng cường khả năng thoát nước và chống thấm hiệu quả. Yếu tố vô cùng quan trọng đảm bảo sự bền vững của ngôi nhà trong thời gian dài.
- Khả năng cân nhiệt: Nhà cấp 4 mái Thái có khả năng giảm nhiệt độ trong nhà vào mùa hè và tăng sự ấm áp vào mùa đông, mang lại sự thoải mái cho các thành viên trong gia đình.
- Kết hợp với không gian sân vườn: Nhà có thể tận dụng diện tích để thiết kế sân vườn hay khoảng sân nhỏ. Thiết kế giúp tạo không gian gần gũi với thiên nhiên, điểm nhấn độc đáo cho ngôi nhà.
Nhược điểm
- Thiết kế nhà cấp 4 mái thái 3 phòng ngủ yêu cầu về sự tỉ mỉ và cẩn trọng khá cao. Gia chủ cần phải đầu tư một khoản chi phí trong việc lựa chọn vật liệu cũng như thuê đơn vị thiết kế và thi công chất lượng.

Tuy nhiên cũng cần biết thêm một vài nhược điểm khi thiết kế nhà cấp 4 mái thái
>>> Xem ngay: TOP 10 Mẫu Bếp Nhà Cấp 4 Đơn Giản Đẹp Tiện Nghi Với Giá Rẻ
[Tổng hợp] mẫu nhà cấp 4 mái thái 3 phòng ngủ ấn tượng nhất hiện nay
Thiết kế nhà cấp 4 mái thái 3 phòng ngủ cực kỳ đa dạng có rất nhiều mẫu khác nhau để gia chủ tham khảo. Dưới đây là một vài mẫu nhà cấp 4 mái Thái 3 phòng ngủ đẹp mắt.
Nhà cấp 4 mái Thái 3 phòng ngủ giả biệt thự sang trọng
Mẫu nhà cấp 4 mái Thái 3 phòng ngủ giả biệt thự kết hợp mái Thái lớn, xếp chồng tạo sự sang trọng và tinh tế. Màu sắc sử dụng đều là những tông màu hiện đại như trắng, ghi, xám…

Mẫu nhà cấp 4 mái thái 3 phòng ngủ giả biệt thự ngói cam

Nhà mái Thái giả biệt thự với ngói màu xanh dương đẹp mắt

Mẫu nhà cấp 4 mái thái 3 phòng ngủ giống biệt thự có sân vườn
Nhà cấp 4 mái Thái 3 phòng ngủ 130m2
Thiết kế nhà cấp 4 mái Thái 3 phòng ngủ 130m2 tích hợp sân vườn tạo sự thân thiện với thiên nhiên và tăng thêm màu sắc hài hòa.

Thiết kế nhà cấp 4 mái thái 3 phòng ngủ 120m2 hiện đại, tinh tế

Bản vẽ mặt bằng mẫu nhà cấp 4 mái thái 3 phòng ngủ 130m2

Thiết kế nhà tích hợp sân vườn tạo sự thân thiện với thiên nhiên

Thiết kế nhà độc đáo và sang trọng phù hợp nhu cầu khách hàng
Nhà cấp 4 mái Thái 3 phòng ngủ 100m2
Thiết kế nhà cấp 4 mái Thái 3 phòng ngủ 5×20 thiết kế kết cấu bền vững với mái được tạo thành khối với bố cục đối xứng. Nhà có thiết kế thêm sân phía trước và ưu tiên lựa chọn tông màu trắng để mang đến sự hài hòa.

Mẫu nhà cấp 4 mái thái 3 phòng ngủ 5×20 có sân vườn trước

Thiết kế nhà cấp 4 mái thái 3 phòng ngủ 100 m2 mái bằng

Thiết kế nhà cấp 4 mái Thái 3 phòng ngủ 5×20 thiết kế kết cấu bền vững
Nhà cấp 4 mái Thái 3 phòng ngủ có nhà vườn
Thiết kế nhà cấp 4 mái Thái 3 phòng ngủ kết hợp với góc sân vườn tạo sự gần gũi với thiên nhiên và mang đến cảm giác bình yên. Nhà nên sử dụng tông màu trắng và nâu giúp cho không gian trở nên ấm áp hơn.

Mẫu thiết kế nhà cấp 4 mái thái 3 phòng ngủ ấn tượng với tone màu gỗ

Thiết kế nhà cấp 4 mái thái 3 phòng ngủ có sân vườn và hồ bơi hiện đại

Nhà nên sử dụng tông màu trắng, nâu giúp cho không gian trở nên ấm áp hơn
Nhà cấp 4 mái thái 3 phòng ngủ hiện đại, phổ biến
Thiết kế nhà cấp 4 mái Thái 3 phòng ngủ hiện đại mang đến sự tiện nghi và sang trọng. Tông màu sử dụng là màu trắng tinh tế có cửa nhôm kính để đón ánh sáng và không khí.

Thiết kế nhà cấp 4 mái thái 3 phòng ngủ hiện đại màu trắng

Thiết kế nhà cấp 4 hiện đại mang đến sự tiện nghi và sang trọng
Nhà cấp 4 mái Thái 3 phòng ngủ chữ L
Thiết kế nhà cấp 4 mái Thái chữ L 3 phòng ngủ tận dụng không gian hình chữ L để làm sân sinh hoạt hoặc chỗ đậu xe. Nhà ưu tiên sử dụng tông màu xanh và trắng có chân tường ốp đá để tạo ra điểm nhấn cho không gian nhà ở.

Mẫu nhà cấp 4 mái thái hình chữ L 3 phòng ngủ với màu chủ đạo đen trắng

Thiết kế nhà cấp 4 mái Thái tận dụng không gian hình chữ L

Bản thiết kế nội thất nhà cấp 4 mái thái 3 phòng ngủ đầy đủ tiện nghi
Nhà cấp 4 mái thái 3 phòng ngủ khoảng 500 triệu
Thiết kế nhà cấp 4 mái thái 3 phòng ngủ khoảng 500 nên lựa chọn phong cách hiện đại sử dụng tông màu trắng và xanh có các bậc tam cấp tại mặt tiền tạo điểm nhấn.
Bạn có thể bố trí 2 chiếc cột trụ tròn màu trắng kết hợp với chi tiết nhấn nhá để tạo sự đối xứng đẹp mắt. Đèn trang trí được thêm vào để tăng thêm vẻ đẹp cho mặt tiền nhà làm cho không gian trở nên thông thoáng hơn.

Thiết kế nhà cấp 4 mái thái 3 phòng ngủ 500 triệu ở nông thôn

Thiết kế nhà cấp 4 mái thái 3 phòng ngủ 500 triệu cực đẹp

Tổng thể ngôi nhà màu trắng mang đến sự hiện đại và sang trọng
Đơn vị thiết kế và thi công nội thất cho nhà cấp 4 mái thái chất lượng
Nhà cấp 4 mái thái 3 phòng ngủ yêu cầu đơn vị thiết kế và thi công phải có kinh nghiệm cũng như tay nghề cao. Đây là một trong những yếu tố vô cùng quan trọng để đảm bảo ngôi nhà được thiết kế đẹp mắt.
Nội thất Mạnh Hệ với nhiều năm kinh nghiệm hoạt động trong lĩnh vực thiết kế và thi công nội thất nhà phố, biệt thự, chung cư nói chung và nhà cấp 4 nói riêng cam kết mang đến sự hài lòng cho khách hàng. Công ty chúng tôi sở hữu đội ngũ kiến trúc sư và kỹ sư có nhiều năm kinh nghiệm cũng như cập nhật nhiều xu hướng mới thiết kế mới.
Nội thất Mạnh Hệ – chuyên thiết kế và thi công nội thất nhà cấp 4 mái thái 3 phòng ngủ
Chúng tôi sở hữu xưởng nội thất với diện tích lên đến 2.500m2 trực tiếp sản xuất đồ dùng nội thất cung cấp cho khách hàng. Nội thất được tuyển chọn sản xuất đảm bảo chất lượng cũng như giá cả thấp hơn so với thị trường lên đến 30%.
Thông qua những thông tin chia sẻ về nhà cấp 4 mái thái 3 phòng ngủ mong muốn mang đến cho khách hàng nhiều lựa chọn. Nếu có nhu cầu tư vấn tại Mạnh Hệ vui lòng liên hệ với chúng tôi thông qua số HOTLINE: 028.777.888.39 – Tel: 0869.048.791 để được hỗ trợ nhanh nhất.










