Những gia đình có kinh phí thấp vẫn yên tâm sở hữu không gian sống thoải mái, tuyệt đẹp theo sở thích của mình khi lựa chọn những mẫu nhà cấp 4 mà Nội Thất Mạnh Hệ sẽ giới thiệu dưới đây. Tùy theo kích thước, phong cách, ngân sách, mục đích sử dụng,….mà các gia chủ hãy lựa chọn cho mình những ý tưởng “bản vẽ thiết kế mẫu nhà cấp 4 giá rẻ“ phù hợp với mình nhé!

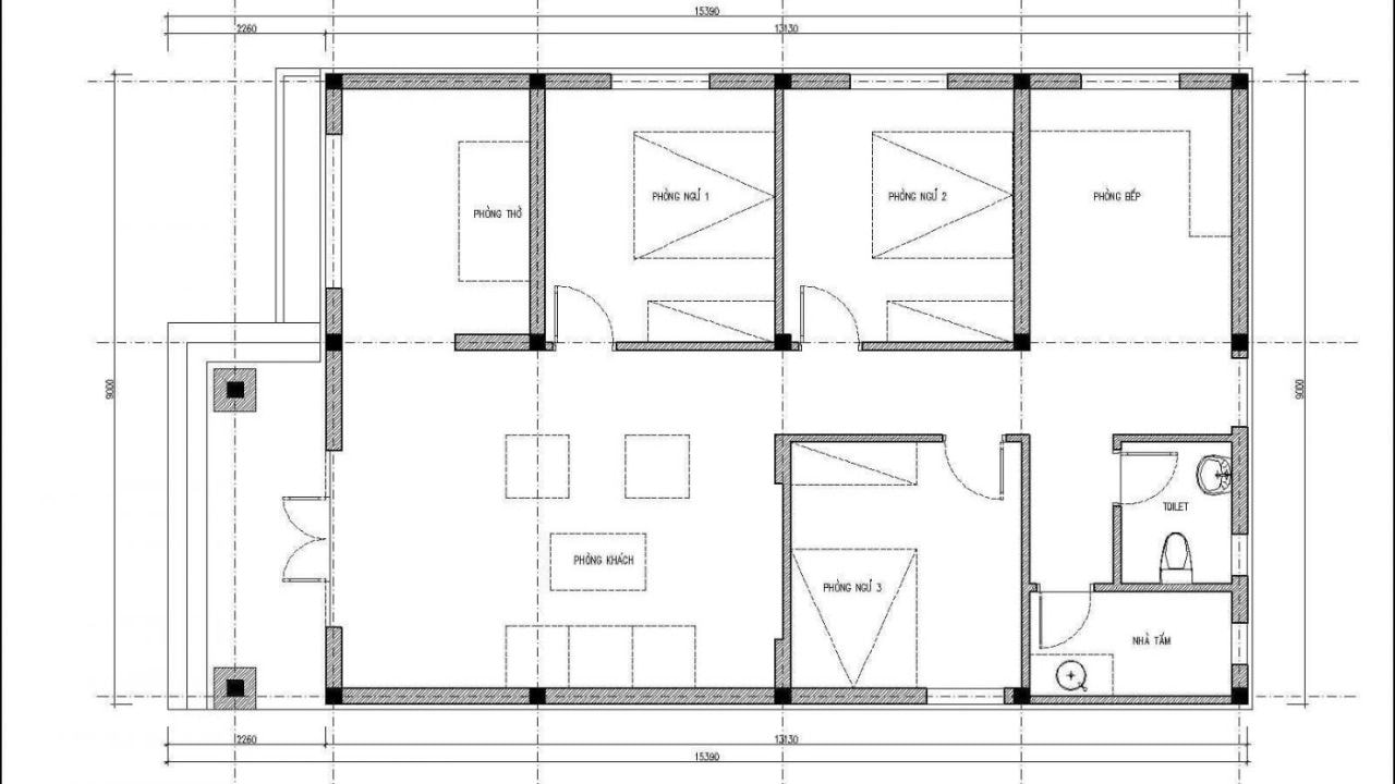
Bản vẽ mặt bằng nhà cấp 4 mới nhất 2025
Những kiểu thiết kế mẫu nhà cấp 4 có diện tích nhỏ, đơn giản nhưng hiện đại sẽ là sự lựa chọn hoàn hảo cho các gia chủ muốn tiết kiệm chi phí. Tổng hợp bản vẽ bố trí mặt bằng cho kiến trúc và nội thất nhà cấp 4:











Thiết kế mẫu nhà cấp 4 giá rẻ chỉ từ 200 triệu đồng
Kiểu nhà mái bằng đang ngày càng trở thành xu hướng được nhiều gia chủ hướng đến. Bởi đường nét gọn nhẹ, thi công đơn giản, tiết kiệm chi phí. Nhưng vẫn toát lên vẻ đẹp năng động, sang trọng qua những cách phối màu của tone màu sơn tường bên ngoài.

Để tạo điểm nhấn phá cách một chút cho căn nhà, các KTS vẫn sử dụng kiểu mái bằng cho ngôi nhà chính, nhưng phối mái thái lợp tôn giả ngói ở mặt tiền nhà. Cách sáng tạo này không những đem đến sự hoàn mỹ hơn cho ngôi nhà, chúng còn là mái hiên có tác dụng che nắng, hạn chế hơi nóng của ánh nắng mặt trời hấp thụ vào căn phòng khách.

Với cách phối màu hiện đại, lấy tone trắng làm chủ đạo, pha lẫn những đường nét màu đen – xám thông qua những chi tiết của cửa chính, cửa sổ, hàng rào, gạch ốp mặt tiền,…làm căn nhà trở nên bắt mắt hơn.
Những đôi vợ chồng trẻ có lối sống hiện đại, thì phong cách mái thái, mặt tiền ốp gạch vân giả gỗ, cùng phụ kiện đèn cạnh cửa chính mang hơi hướng châu Âu là ý tưởng thiết kế nhà hoàn hảo dành cho gia đình bạn đấy.

Cách thiết kế nhà cấp 4 mái bằng có gara xe hơi tiện dụng (nguồn: Internet)
Sử dụng một khoảng bên hông của ngôi nhà làm không gian để xe hơi gọn gàng. Đồng thời, ốp nan gỗ nhựa phía dưới mái hiên góp phần hoàn thiện nét đẹp sang trọng của gia chủ.
Với kiểu thiết kế này, nếu gia đình bạn có từ 3 – 4 thành viên thì nên thiết kế thêm gác lửng, để đủ không gian phòng ngủ thoải mái cho cả ngôi nhà.

Phối cảnh tầng 1 nhà cấp 4 – 3PN (nguồn: Internet)
Không gian được bố trí hợp lý, hai phòng ngủ được sắp xếp về một bên, phòng khách và khu vực ăn liên thông với nhau để tiết kiệm diện tích. Phần cửa được bố trí lệch sang một bên để kê được bàn ghế phòng khách.
Tổng hợp các mẫu nhà cấp 4 đẹp
Nhà cấp 4 mái bằng hiện đại
Không yêu thích sự truyền thống, nét cổ điển thì kiểu nhà cấp 4 mái bằng là gợi ý mà Mạnh Hệ dành riêng cho bạn. Với các kiểu mái bằng này, sẽ có nhiều nét đột phá, sáng tạo hơn để tạo điểm nhấn riêng trong cách thiết kế ngôi nhà của bạn.

Đối với những căn nhà nhỏ, đơn giản, việc bố trí sân vườn xinh xắn để tô điểm thêm sắc màu cho không gian luôn là ý kiến tuyệt vời. Sự kết hợp giữa tone màu nâu nhạt với màu trắng đem đến nét đẹp dịu dàng, nhã nhặn.

Thiết kế gác lửng cho mẫu nhà cấp 4 mái bằng hiện đại (nguồn: Internet)
Bố trí căn gác lửng gọn nhẹ, để tạo thêm không gian riêng hợp lý hơn cho các thành viên trong gia đình. Mặc dù kiểu dáng đơn giản, nhưng bạn hãy chú trọng bố trí cửa sổ lớn, thêm cửa phụ bên hông hoặc sau nhà để căn nhà được lưu thông thoáng khí. Vừa đem đến không gian thoáng đãng lại rất tốt cho phong thủy.

Nhà cấp 4 được sử dụng màu sơn xám nhẹ và tone màu trắng sang trọng. Vì là phong cách hiện đại, nên những họa tiết ngay mặt tiên nhà đơn giản, chỉ là những nét ngang xen kẽ màu xám và trắng, nhưng cũng đủ thu hút ánh nhìn ngay lần đầu bắt gặp.
Mẫu nhà cấp 4 mái thái sang trọng
Đối với những gia chủ yêu thích vẻ đẹp có hơi cổ điển, truyền thống một chút, thì kiểu nhà cấp 4 mái thái sẽ là những lựa chọn yêu thích của bạn.


Mái thái tôn giả ngói chống nóng hiệu quả cho nhà cấp 4 sân vườn (nguồn: Internet)

Nhà cấp 4 mái thái dạng nhà ống xuyên suốt (nguồn: Internet)
Kiểu mái thái cao có tác dụng chống nóng rất hiệu quả cho ngôi nhà của bạn. Vì phần mái cao, chất liệu ngói trên mái nhà sẽ cách nhiệt, giúp không khí trong nhà bạn hầu như lúc nào cũng mát dịu, rất dễ chịu.

Nhà cấp 4 mái thái chữ L rộng rãi (nguồn: Internet)
Nếu ngân sách của bạn kha khá một chút, kiểu nhà cấp 4 chữ L sẽ cho bạn 2 không gian với 2 cửa lớn riêng biệt. Các phòng ngủ, phòng bếp thường được bố trí ở phía cuối nhà hoặc gần phần cửa bên hông. Vì với nhà kiểu chữ L, những vị trí đấy sẽ có không khí luôn mát mẻ.

Nhà cấp 4 có sân vườn đẹp ở nông thôn (nguồn: Internet)

Nhà cấp 4 ở nông thôn mái thái đẹp (nguồn: Internet)
Cách chia bố cục rất hợp lý, sử dụng một phần bên hông nhà để làm nơi ngồi thư giãn, trò chuyện, đàm đạo cùng hàng xóm, bạn bè, người thân,…trong khoảng sân nhỏ xinh của mình.
Kết hợp nan gỗ nhựa ốp ngoại thất màu nâu, cùng những đường nét cứng cáp ở phần mái nhà cho chúng ta cảm giác chắc chắn, bền bỉ.
Thiết kế nhà cấp 4 có gác lửng đơn giản, đẹp
Nếu bạn là gia chủ có “gu”, hãy bố trí thêm căn gác lửng để tạo thêm những không gian riêng, lại tô điểm thêm sự ấn tượng bên trong nội thất ngôi nhà của bạn.

Nhà cấp 4 màu nâu gỗ quý phái có bố trí gác lửng (nguồn: Internet)

Phối cảnh nhà cấp 4 đơn giản mái lợp tôn có gác lửng (nguồn: Internet)
Thiết kế hệ thống cửa sổ nhỏ để lấy ánh sáng, thông thoáng không khí cho gác lửng và toàn bộ ngôi nhà. Cách thiết kế phần trước thường cao hơn phần sau là phong thủy tốt, mặt tiền đón tài lộc.

Bản vẽ bố trí mặt bằng tầng 1 và gác lửng nhà cấp 4 (nguồn: Internet)
Công năng mặt bằng bao gồm: phòng khách, bếp ăn, sân phơi, nhà vệ sinh, 1 phòng ngủ, phòng thờ, Tận dụng góc thông tầng để bố trí phòng làm việc yên tĩnh cho gia chủ.

Gợi ý bố trí nội thất gác lửng bên trong nhà cấp 4 (nguồn: Internet)
Tùy vào mục đích sử dụng mà các gia chủ lựa chọn đồ nội thất, cách bố trí nội thất sao cho hợp lý để đảm bảo công năng của không gian. Nhưng, cũng phải chú ý đến màu sắc hay cửa sổ để không gian gác lửng không bị bí bách nhé các gia chủ thông thái.
>>>> Gợi ý những “mẫu thiết kế gác lửng nhà cấp 4 giá rẻ” với nhiều công năng khác nhau chỉ dành riêng cho bạn.
Bố trí nội thất bên trong nhà cấp 4
Bên cạnh việc lựa chọn mẫu xây nhà phù hợp với sở thích gia chủ, hãy lên ngân sách để bố trí nội thất bên trong nhà cấp 4 sao cho khoa học, phù hợp với từng công năng riêng biệt của căn phòng.



Phòng bếp sang trọng bên trong nhà cấp 4

Vách ốp MDF Acrylic cho không gian phòng khách nhà cấp 4 trở nên sang trọng hơn hẳn
Vật liệu gỗ ốp Acrylic bóng gương, phản chiếu với những ánh đèn led âm trần sẽ làm không gian nhà bạn luôn mới mẻ, sáng sủa và tôn lên vẻ đẹp sang trọng của gia chủ.


Không gian phòng ngủ master rộng rãi, tiện nghi cho nội thất nhà cấp 4 hiện đại
Đối với không gian phòng ngủ nhà cấp 4, những chiếc giường ngủ đôi thường được sử dụng nhiều hơn giường ngủ dạng bục. Do phong cách thiết kế đơn giản, đẹp, tiện dụng, đảm bảo công năng sử dụng luôn được các gia chủ nhà cấp 4 đề cao hàng đầu.
Nếu bạn cần những không gian riêng, yên tĩnh,…thì căn gác lửng nho nhỏ trong nhà cấp 4 sẽ là góc im lặng tuyệt vời dành cho bạn. Nhưng, để đem đến cho bạn cảm giác tuyệt vời nhất, hãy trang trí chúng với những phụ kiện mà bạn yêu thích nhé!
Qua những gợi ý của Nội Thất Mạnh Hệ, ắt hẳn các bạn cũng đã xác định được mẫu nhà cấp 4 thuộc về mình rồi phải không nào? Trong quá trình gần hoàn thiện xây dựng ngôi nhà của mình, các gia chủ vẫn có thể alo ngay cho Nội Thất Mạnh Hệ qua HOTLINE: 028.777.888.39 Tel: 0869.048.791 để lên trước bản thiết kế nội thất dành riêng cho ngôi nhà của mình. Khi căn nhà vừa hoàn thiện phần thô xong, Mạnh Hệ sẽ tiến hành thi công nội thất ngay, giúp cho tiến độ hoàn thiện không gian sống được nhanh hơn, tiết kiệm thời gian hơn rất nhiều!
+ Địa chỉ văn phòng: Số 5 Đống Đa, Phường 2, Tân Bình, Thành phố Hồ Chí Minh
+ Địa chỉ xưởng sản xuất nội thất: 6/9 Huỳnh Thị Na, Đông Thạnh, Hóc Môn, Hồ Chí Minh
>>>> Tham khảo những công trình tiêu biểu gợi ý cho bạn những không gian sống hoàn hảo.











