Có thế thấy trong thời kỳ đô thị hóa như hiện nay, các hộ gia đình thường có xu hướng xây nhà ống để vừa tiết kiệm được diện tích, chi phí mà vẫn đảm bảo được công năng sử dụng và tính tiện lợi cao. Tuy nhiên để căn nhà ống không bị chật hẹp, bí bách về mặt không gian thì hầu hết mọi người lại đều băn khoăn về việc bố trí mặt bằng, phân chia các phòng trong nhà ống như thế nào cho hợp lý, thoải mái, đặc biệt là phải phù hợp phong thủy nữa.
Vậy để giải đáp được khúc mắc đó, đội ngũ kiến trúc sư lâu năm của Nội Thất Mạnh Hệ đã tìm hiểu và phân tích cụ thể cho các bạn qua bài viết dưới đây nhé!!!
Nhà ống là gì?
Nhà ống là loại nhà thường xuất hiện phổ biến ở đô thị bởi nó được thiết kế và xây dựng trên một ô đất có chiều ngang nhỏ hơn nhiều so với chiều sâu. Vì vậy nó được ví như một “cái ống” dài, các phòng cũng được bố trí dọc theo chiều dài nên diện tích thường có phần nhỏ hẹp, chật chội.
Mẫu nhà ống 2 tầng phổ biến tại Việt Nam
Với những đặc điểm riêng biệt như trên thì cách phân chia và bố trí các phòng trong nhà ống cũng phải tuân thủ theo những quy tắc nhất định. Cùng tìm hiểu thêm dưới đây nhé.
Tư vấn cách phân chia phòng trong nhà ống hợp lý
Nhà ống 1 trệt 1 lầu, 1 trệt 2 lầu hay 1 trệt 3 lầu rất phổ biến hiện nay. Để tạo ra được một không gian sống hoàn hảo, tiện nghi, đầy đủ chức năng mà vẫn rộng rãi, thoáng mát bạn cần biết cách chia phòng trong nhà ống hợp lý.
Kiến trúc sư gợi ý cho bạn cách chia phòng trong nhà ống như sau:
Chia phòng nhà ống 1 tầng
Nhà ống 1 tầng sẽ bao gồm các phòng: khoảng sân nhỏ, phòng khách liên thông phòng bếp rồi bố trí thêm 2 phòng ngủ nhỏ, cuối cùng là nhà vệ sinh.




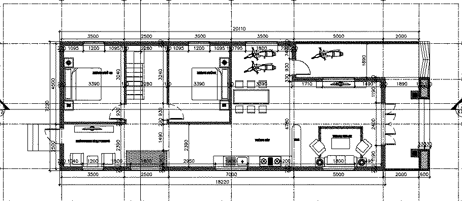
Một số bản vẽ mặt bằng bố trí các phòng nhà ống có 1 tầng
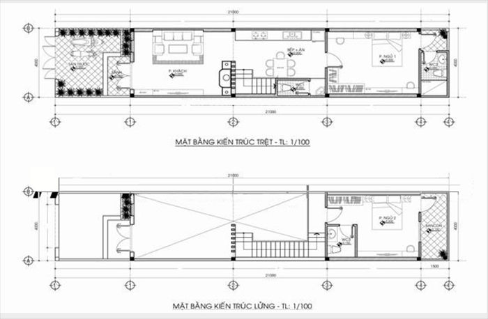
Chia phòng nhà ống 2 tầng
Từ cổng đi vào là khoảng sân nhỏ, khoảng sân này vừa có thể để xe, vừa để trang trí một khu vườn nhỏ cho ngôi nhà thêm sinh động. Qua khoảng sân là bước vào các không gian: phòng khách, phòng ăn và bếp liên thông, nhà tắm và khu vệ sinh. Lên đến tầng 2 có thể là không gian ban công lớn để giặt và phơi đồ và 2 phòng ngủ nhỏ

Chia phòng nhà ống 3 tầng
Tầng 1 được chia thành 2 phòng ngủ và 1 nhà vệ sinh chung. Tại đây thường có thêm ban công được bố trí đẹp mắt để các thành viên đón nắng, gió mát và trò chuyện với nhau.

Tầng 2 nhà ống được chia thành 2 phòng ngủ, phòng vệ sinh, không gian sinh hoạt chung

Với cách bố trí các phòng trong nhà ống 2 tầng hay 3 tầng, 4 tầng,… các tầng 3 – tầng trên cùng sẽ bao gồm gồm phòng thờ, khu vực giặt đồ và sân thượng.
Cách bố trí đồ nội thất các phòng trong nhà ống
Bởi vì nhà ống có không gian nhỏ hẹp nên bạn hãy ưu tiên chọn những sản phẩm nội thất có thiết kế tối giản, đa năng. Ngoài ra màu sắc của những món đồ nội thất cũng cần phải có màu nhã nhặn, hài hòa để tạo sự thông thoáng, rộng rãi cho không gian.
Phòng khách
Cửa chính: Bạn nên thiết kế cửa chính nơi thông thoáng, không bị các các vật lớn chắn ngang. Lưu ý là không làm cửa trước tại vị trí vòng cung hay đường gấp khúc, đường đâm thẳng vào nhà, đường thấp hơn đường đi trước cửa.
Cầu thang: Nên xây cầu thang dạng thẳng hoặc uốn cong, tránh thiết kế và xây hình xoắn ốc. Bởi vì theo phong thủy, dạng xoắn ốc như khoan vào quả tim của ngôi nhà, không tốt cho vận khí.
Thiết kế cửa kính tạo không gian thoáng đãng, thoải mái
Phòng khách nhà ống được thiết kế hiện đại, sang trọng với nội thất cao cấp, tiện nghi. Cầu thang được bố trí cạnh phòng khách, kiến trúc sư đã tận dụng không gian dưới gầm cầu thang để tủ tivi, tivi phòng khách. Phòng khách nhà ống thường có bề ngang nhỏ chật hẹp, gia chủ nên tận dụng các góc nhà bằng cách đặt bình phong, kệ hay chậu cây xanh..
Chiếc ghế sofa dài bọc vải nhung quý phái
Nếu không ưa chuộng các vách gỗ kiểu truyền thống và cổ điển, bạn có thể thiết kế vách ngăn theo phong cách hiện đại và trẻ trung chạm trổ họa tiết, thể hiện gu thẩm mỹ của bản thân và khiến không gian thêm phần tinh tế.
Phòng bếp
Không nên đặt bếp ở dưới khu vệ sinh hay trên khu vệ sinh, không bố trí tựa lưng bếp ra cửa sổ hoặc ra các khoảng trống, không để bếp dưới giường ngủ hoặc gần bể nước.
Bạn có thể thiết kế nội thất phòng bếp chung với phòng ăn còn giúp tiết kiệm diện tích nhà ống rất hiệu quả. Việc kết hợp hai chức năng chung một không gian phòng sẽ giúp bạn có thêm khoảng diện tích trống trải dành cho những phòng chức năng khác.

Thiết kế phòng bếp kết hợp phòng ăn đẹp hiện đại và tiện nghi
Do phòng bếp nhà ống thường hẹp về chiều ngang và sâu về chiều dài, nên các mẫu tủ bếp chữ I, chữ L, tủ bếp song song sẽ là những thiết kế tối ưu nhất giúp tiết kiệm diện tích. Ngoài việc trang trí decor phòng bếp bằng những bức tranh hay những chiếc đèn chùm sang trọng, bạn có thể sử dụng chiếc gương lớn màu trắng để nhìn không gian thêm phần rộng mở

Thiết kế nhà bếp nhà ống với hệ tủ bếp chữ I hiện đại
Phòng ngủ
Để đem lại sự thoải mái, gia chủ nên chọn thiết kế nội thất phòng ngủ nhà ống theo phong cách hiện đại, đơn giản. Ưu tiên sử dụng các món đồ nội thất đa năng như kệ, tủ quần áo âm tường giúp tiết kiệm không gian, đảm bảo đồ đạc gọn gàng.
Thiết kế giường bục có hộc kéo tiết kiệm không gian cho phòng ngủ hiện đại và tiện nghi
Giường ngủ không nên đặt ở phía trên bếp hoặc phía trên bàn. Không được đặt giường ngủ ở dưới xà nhà, dầm nhà, quạt trần, đồ trang trí có góc nhọn. Đặc biệt không để đầu giường ngủ quay ra trực tiếp của sổ, cửa đi, bệ xí.
Thiết kế phòng ngủ master dành cho vợ chồng phong cách hiện đại
Nếu như không gian đủ rộng thì bạn nên bố trí thêm những cây xanh ưa bóng tối trong phòng ngủ vừa có tác dụng làm đẹp thêm cho căn phòng vừa giúp điều hòa không khí, mang lại không khí dễ chịu.
Phòng tắm, nhà vệ sinh
Vị trí nhà vệ sinh trong nhà ống cần phải thông thoáng: Nhà vệ sinh tối và ẩm thấp là điều không dễ chịu đối với bất cứ người nào. Do đó, khu vực này nên được thiết kế với nhiều cửa sổ hoặc gắn mái kính để lấy ánh sáng và không khí.

Nhà vệ sinh hiện đại trong suốt cho bạn những phút giây thư giãn trong chính căn phòng riêng của mình
Cấu trúc nhà vệ sinh: Gồm ba khu vực, bồn cầu, lavabo và khu tắm đứng. Bên cạnh việc quan tâm đến sự thông thoáng, một yếu tố hệ trọng nữa là nhà vệ sinh cần phân biệt hai không gian khô và ướt. Khu vực khô lắp đặt bồn cầu và lavabo; khu vực ướt dành để tắm

Không gian nhà nhà vệ sinh phòng ống trong phòng ngủ trong suốt hiện đại
Lưu ý: Không đặt khu vệ sinh trên khu bếp hoặc trên bàn thờ, trên giường ngủ, cửa ra vào chính.
Ban công/ Sân thượng
Ban công được chú trọng trong thiết kế nhà ống bởi nó sẽ trở thành không gian thoáng mát, thư giãn nhất trong căn nhà bị hạn chế về diện tích. Chúng ta chỉ cần bố trí một vài cây xanh và một bộ bàn ghế là đã có thêm một không gian lý tưởng tuyệt vời để khuyến khích mọi người ra ngoài tận hưởng không khí trong lành nhiều hơn.
Bố trí sân thượng nhà ống rộng rãi cho cả gia đình quây quần
Qua phần chia sẻ cách chia và bố trí các phòng trong thiết kế nội thất nhà ống theo phong thủy trên, hy họng bạn sẽ học được các mẹo sắp xếp và phân chia không gian nhà ống khoa học và hợp lý nhất.
Tham khảo các mẫu thiết kế nội thất nhà ống hiện đại và tiện nghi
Mẫu thiết kế nội thất nhà ống của anh Đức (Bến Tre) 2 tầng
Phòng khách cần được thoải mái, tiện nghi và không quá nhiều đồ đạc
Phòng bếp với phong cách hiện đại, nhỏ nhắn tạo cảm giác dễ chịu cho người nhìn.

Phòng ngủ đầy đủ tiện nghi cho người chủ gia đình
Sự kết hợp màu sắc tinh tế, khéo léo của các kiến trúc sư mang đến một không gian tuyệt vời cho bé
Phòng giặt với thiết kế gạch ốp tường màu trắng tinh tế
Cùng không gian với phòng giặt có thể đặt chiếc ghế bành ngồi thư giãn, hòa mình với thiên nhiên
Khu vực nhà tắm và nhà vệ sinh được ngăn cách bằng tấm kính cường lực giúp căn phòng trông rộng rãi, thông thoáng hơn
Thiết kế nội thất nhà ống đẹp cho anh Huân (Thủ Đức) phong cách hiện đại

Sử dụng ghế sofa chữ L đặt sát tường tận dụng tối ưu diện tích không gian nhà ống

Thiết kế kệ tivi treo tường đơn giản nhưng đẹp nhã nhặn với gam màu gỗ vàng – trắng trẻ trung

Vách ngăn gỗ tại cầu thang giúp giữ không gian riêng cho gia đình khi ở phòng bếp

Tủ bếp chữ I đựng trần đơn giản nhưng đảm bảo công năng sử dụng nhờ cách chia ô tủ sáng tạo

Mang kiểu dáng đơn giản, bộ bàn ăn gỗ 4 ghế là nơi quây quần của gia đình sau ngày làm việc mệt mỏi
Lựa chọn gam màu xám làm chủ đạo tạo cảm giác thư giãn cho căn phòng ngủ master

Tối ưu ánh sáng tự nhiên cho phòng ngủ bé là điều cực kỳ quan trọng

Chọn gam màu nâu đất trầm tính cho phòng ngủ bé trai
Mẫu thiết kế nội thất nhà ống của chị Trân (Tân Phú) 2 tầng
Không gian phòng khách đẹp hiện đại

Tủ bếp chữ U gỗ công nghiệp

Không gian ăn uống lịch sự

Không gian phòng ngủ khá rộng rãi và thoáng mát

Phòng ngủ của bé cũng hiện đại không kém

Phòng sinh hoạt chung cho các thành viên trong gia đình
Sau khi xem tổng thế cách bố trí các phòng cũng như các mẫu thiết kế nội thất căn nhà ống ở trên, Nội Thất Mạnh Hệ hy vọng đã đem đến cho các bạn cái nhìn rõ nét hơn để thiết kế cho gia đình mình một không gian sống hoàn hảo và tiện nghi nhất có thể nhé. Nếu các bạn muốn tư vấn thêm thông tin về các chia và bố trí nhà ống thì đừng chần chừ gì mà hãy liên hệ ngay với Mạnh Hệ nhé!
Tại Mạnh Hệ, chúng tôi có xưởng sản xuất nội thất trực tiếp, tiết kiệm 30% chi phí cho bạn. Ngoài ra còn có dịch vụ miễn 100% phí thiết kế 3D nếu bạn đặt thi công nội thất nhà ống.











